Квартира в ЖК Преміум Парк (№ 212-808-731)

Ціна: 140 000 $
Характеристики
| Ціна: | 140 000 $ |
|---|---|
| № об'єкта: | 212-808-731 |
| Кімнат: | 3 розд |
| Поверх: | 11 / 12 ліфт |
| Площа: | 102 / 65 / 29 м2 |
| Санвузол: | 2 роздільний + сумісний |
| Балкон: | балкон+лоджія |
| Тип рынка: | новостройка |
| рядом находится: | Ринок, Зупинка транспорту, Дитячий садок, Супермаркет, ТРЦ, Магазин, кіоск, Школа |
| Высота потолков, м: | 2.7 |
| тип дома: | кирпичный |
| особые условия: | торг уместен |
| Додатково: | новобудова |
Адреса: Житомирська, Житомир, Королівський
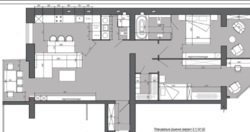
Продається 3-х кімнатна квартира преміум класу в Новобудові ЖК Преміум Парк.
В квартирі зроблений дизайнерський проект який отримає новий власник.
Будинок введений в експлуатацію.
Цегляний будинок утеплений мінеральною ватою.Стан квартири після забудовника.
Загальна площа 102 кв.м квартира розташована на 11-му поверсі з 12.
Бонусом цієї квартири є кладова 4 кв.м розташована на поверсі.
Встановлений двухконтурний котел,підключені всі комунікації, створено ОСББ.
В квартирі зроблена проводка та труби.
Територія будинку закритого типу є парко місця та дитячий майданчик.
В сусідньому підїзді працює приватний садочок. За будинком вихід в центральний парк міста.
Розвинена інфраструктура,поруч школи,садочки та магазини.
Сайт vashrealtor.zt.ua
Можливий підбір нерухомості по місту






















